Strona główna
Mapa serwisu
Zgłoś ofertę
Polityka plików cookies
Kontakt

Wyszukiwarka

Nr oferty
 
 
 
Miejscowość lub dzielnica
Ulica
Powierzchnia
-
Liczba pokoi
-
Cena
-
oferty specjalne
Notes Zgłoś ofertę Kalkulator Mapa serwisu Kontakt

Waluty

USD 3,98 EUR 4,32 CHF 4,53

Na skróty

Oferta nr: 194/1467/OGS
Rodzaj oferty
działka budowlana ( sprzedaż )
Lokalizacja:
WARSZAWA, REMBERTÓW
Cena:
530 000 PLN kalkulator
Cena za mkw:
2 022,9 PLN mkw
Powierzchnia:
262.00 m2
Droga dojazdowa:
asfaltowa
Media - prąd:
TAK
Media - gaz:
TAK
Opis
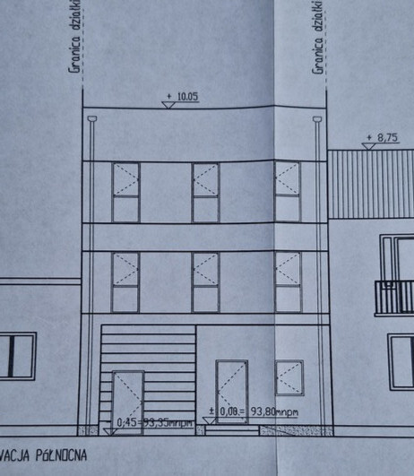
Oferujemy na sprzedaż działkę 262 m2 z podłączonymi wszystkimi mediami, warunkami zabudowy, projektem budowlanym domu dwupiętrowego w zabudowie szeregowej z dwoma miejscami parkingowymi i ogródkiem. Na każdym piętrze lokal.
działka znajduje się między domami przy ul. Komandosów w Warszawie dzielnicy Rembertów. Komunikacja do centrum Warszawy autobusowa lub dwa przystanki autobusem i dalej ok. 15-20 minut do centrum Warszawy.
W okolicy tereny zielone oraz pełna infrastruktura apteka, przychodnia, kościół, sklepy, poczta, hipermarkety, restauracje, kościół, szkoła, przedszkole itp przychodnia.
Polecam dla dużej wielopokoleniowej rodziny lub inwestycyjnie pod budowę z przeznaczeniem sprzedaży lub wynajmu lokali.
Na parterze może być lokal usługowy.



WILGA NIERUCHOMOŚCI AGNIESZKA WĄSOWSKA,
tel. 509 45 33 17
licencja 15122
Kontakt
Agnieszka Wąsowska
Nr licencji pośrednika odpowiedzialnego zawodowo: 15122
509453317
wasowska.agnieszka@wp.pl
 
WILGA NIERUCHOMOŚCI AGNIESZKA WĄSOWSKA
Pielgrzymów 11
04-417 Warszawa
tel.: 509453317
email: wasowska.agnieszka@wp.pl
Pytanie w sprawie oferty
Imię i Nazwisko 
Telefon 
E-mail 
Treść zapytania 

Wyrażam zgodę na przetwarzanie moich danych osobowych przez firmę WILGA NIERUCHOMOŚCI AGNIESZKA WĄSOWSKA dla celów związanych z działalnością pośrednictwa w obrocie nieruchomościami, jednocześnie potwierdzam, iż zostałem poinformowany o tym, iż będę posiadać dostęp do treści swoich danych do ich edycji lub usunięcia.
© 2025 WILGA NIERUCHOMOŚCI AGNIESZKA WĄSOWSKA. Wszystkie prawa zastrzeżone.
asaricrm.com - programy dla biur nieruchomości

WILGA NIERUCHOMOŚCI AGNIESZKA WĄSOWSKA, ul. Pielgrzymów 11, 04-417 Warszawa, REGON 142350030, NIP 9521268767, wpis do EDG prowadzonej przez Prezydenta m. st. Warszawy nr 508168, e-mail: wasowska.agnieszka@wp.pl, tel. 509453317